The Stockport Institute for the Blind
Date:2001
Location: Stockport
Value: £250k
Client: RNIB
Category: Health/Community
This project was undertaken by Kharyat Siddiq as architectural lead during his time at The Architectural Design Workshop (TADW)
Project Details:
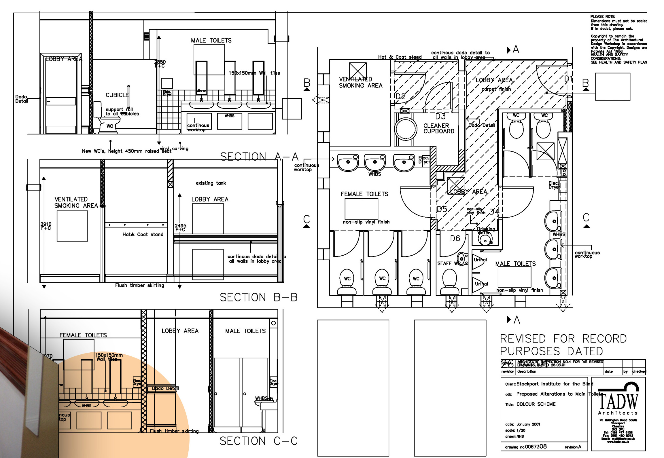
This was a small refurbishment project for the RNIB National Library Service in Stockport that achieved a great deal with a limited budget.
The brief called for an attractive, functional and lasting design to improve a poor quality existing toilet and cooridor area. Kharyat worked closely with the client to understand the specific needs of the staff and visitors. This included designing in accordance with the RNIB’s ‘Building Sight’ guidelines and getting to grips with issues of visual contrast, suitable lighting and controlled reflection.
Walls, floors and ceilings have been carefully designed to create a highly legible environment and specific attention to wayfinding by introducing intricate dado detail to assist; and the result is a boldly contemporary design in which colour, contrast and texture are used to guide you through a series of delightful toilet spaces. The handover was well received by the end user and the client as the project was completed within agreed timescale and budget.


